KAMINOFEN WODTKE DANCE 7 KW
Kaminofen Wodtke Dance 7 kW
Dance heißt der schlanke Ofen von Wodtke, der laut Hersteller durch die „Swing“-Form besonders besticht. Tatsächlich ist der runde Kaminofen ein schönes Gerät, das auch seine technische Ausstattung nicht verstecken muss.
Die Besonderheiten des Wodtke Dance 7kW Kaminofen
- Air Control Thermoregelung
Im Wodtke Dance 7 kW ist die eigens im Hause Wodtke entwickelte Air Control verbaut, die die Verbrennungsluftführung regelt und einen optimierten Abbrand garantiert. So müssen zur Bedienung keinerlei Schieber oder Klappen mehr betätigt werden. Über ein Kapillarsystem ist eine Steuerklappe mit einem Temperaturfühler verbunden, die hydraulisch verstellt wird. Sie passt sich an die verschiedenen Phasen des Abbrands an, indem sie geschickt mit Primär- und Sekundärluft umgeht. So wird vollautomatisch und nur durch Nutzung thermohydraulischer Kräfte nicht nur der Abbrand verbessert, sondern auch die wirkungsvolle Scheibenspülung betrieben.
Weitere Pluspunkte des Wodtke Dance
- Lagerfach im Sockel
- Dekorleisten mit Griff aus Edelstahl
- kühler Türgriff während des Betriebes
- AWS-Scheibenspülung
- hochwertige, doppelwandige Stahlkonstruktion
- Feuerraumauskleidung mit bewährter Vermiculite
- langlebiger Feuerrost aus massivem Gusseisen
- Aschelade für bequeme Entaschung
- Rauchrohranschluss horizontal oder vertikal
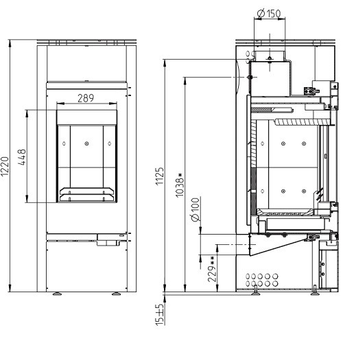
Technische Daten des Kaminofen Wodtke Dance 7 kW raumluftunabhängig
- 2. Stufe der 1. BImSchV erfüllt
- Nennwärmeleistung 7 kW
- Raumheizvermögen nach DIN 18893 bis zu 25 m² – 62 m²
- Brennstoff Holz
- CO-Gehalt im Abgas < 0,12 %-Vol.
- Abgastemperatur 305°C
- Abgasmassenstrom 7 g/s
- Notwendiger Förderdruck (Schornsteinzug) 12 PA
- Bauart 1 / Mehrfachbelegung möglich
- Geprüft nach EN 13240 und Art. 15a B-VG
- Rauchrohranschluss nach oben oder hinten Ø 150 mm
- Anschluss für Verbrennungsluftleitung Ø 100 mm
- Gewicht 129 kg
Der Wodtke Kaminofen Dance ist in den folgenden Ausführungen erhältlich:
- Grundkörper: grau
- Front-Dekorleisten: Edelstahl
- Türgriff: Edelstahl
Alle technischen Angaben wurden bei Nennwärmeleistung gemessen und sind abhängig von Variante/Ausführung.










































Rezensionen
Es gibt noch keine Rezensionen.